[株洲建发央著]168㎡户型告诉你 产品力可以多强悍!
扫描到手机,新闻随时看
扫一扫,用手机看文章
更加方便分享给朋友
随着时代的发展,户型产品对于空间改善设计,已经不再是单一地执着于面积的大小,而是在面积基础上进行合理布局,既满足全生命周期需求,又不断升级获得更高舒适度。
以全家型改善需求为考量,株洲建发·央著建面约168㎡户型,通过前瞻性的设计思维,以健康、多元美好场景的户型空间,再次刷新株洲全城居住观,其舒适度可以媲美甚至挑战180㎡户型了!
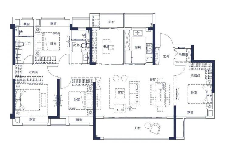
先简单看一下物理数据:全优大五房、行政主套卧、6.9米大横厅、私享入户前室……功能组合上已经完全具备180㎡甚至200㎡大户气质,以中高位面积段,享受越级高位功能配置!
均好型五房空间,无论是三孩时代还是三代同堂,无论家庭结构如何变化皆可轻松同住,一步到位,无需换房。且次卧面积均为超过10㎡的大空间,可放得下1.8米双人床,予每个家庭成员以尊重和舒适体验!
央著168㎡户型为罕见两梯两户对称布局,整栋仅168㎡一种房型,居住圈层更加纯粹,品质也更加卓越。全部户型为纯板楼,南北通透,约17.1m超大尺度面宽,拉开生活视野与格局!不仅电梯独立入户,每户皆可私享约11㎡大前室,给予业主足够的私密性与尊贵感!
另外,入户玄关配置独立储藏室,进一步提升收纳容量,增加入户清洁、家政收拾等功能,即方便实用,又大大提升归家仪式感和体验感!
家庭交通动线上以客餐家庭社交区为中心展开,实现主次动静有效分区,老人房另位于一侧,相对独立和安静。客餐横厅开间达约6.9m,外接6.9m等宽大阳台,加上厨房公区,打造使用面积可达约52.4㎡的LDKG空间(“客餐厅+厨房+阳台”一体化空间),成为整个家庭社交中芯区,超大空间区域强调大家庭互动交流功能,日常变身为各种生活场景大舞台!
深U型厨房,更符合人体功能学设计,洗、切、炒一气呵成,且储物功能和空间尺度也更为宽裕。厨房可做半开放式设计,连通客餐横厅,厨房后勤区与家庭社交区的有效链接,可进一步丰富生活场景!
大书房位于次卫与厨房之间,即家庭静区与动区的交界处,可有效过渡,进一步加强动静区的相互独立性。书房进深约3.2米,可打通阳台向外延伸至约4.2米,打造约12㎡实用性更强的宽敞多功能间。书房亦可做开放式设计,与LDKG公区连通,打破空间禁锢,有效提升公区的空间感和体验感。
在168㎡面积段,在做到均好五房的同时,又能同时配置大容量独立衣帽间和四件套卫浴的户型不多,但央著168㎡户型是其中一个。
约3.8米大开间主卧,整个进深达约9.1m,前后皆配置飘窗,风光适宜。大套房设计,配备豪华衣帽空间,洗漱台、卫生间、淋浴间、飘窗四件套一字排开设计,整体空间张弛有度,让主人尽享舒心私密时光。
扩容不止是小户型的专利,央著约168㎡户型,在空间亦追求尽美。
全屋空间皆做扩容处理,卧室空间皆以飘窗向外拓容,书房及横厅外接阳台延伸,厨房外大设备平台可与北阳台完全打通,提高使用性。外加超约11㎡的私享入户前室,使整个户型使用面积大扩容,空间体验感大提升,享法再升级!
央著168㎡户型,以高阶的产品力,颠覆性创新,只为深度改善每一户精英家庭的生活需求,美好一生之宅,一席守护一生!

声明:本文由入驻焦点开放平台的作者撰写,除焦点官方账号外,观点仅代表作者本人,不代表焦点立场。


